Freistehendes Wohnhaus mit Wirtschaftsgebäude in Taufers im Münstertal zu verkaufen
Zum Verkauf steht ein freistehendes Wohnhaus mit angebautem Wirtschaftsgebäude und umliegendem Grund in einer sehr sonnigen und ruhigen Wohnlage von Rifair, einer Fraktion der Gemeinde Taufers im Münstertal.
Das gesamte Wohnhaus wurde im Laufe der Jahre immer wieder umgebaut und erweitert und befindet sich somit in einem sehr guten Erhaltungszustand.
Es erstreckt sich über 3 Stockwerke und ist wie folgt aufgeteilt:
Kellergeschoss:
- Kellerräume
- Heizraum
Erdgeschoss:
- Küche
- 2 Schlafzimmer
- Wohnzimmer
- Badezimmer
- Tages-WC
- Flur
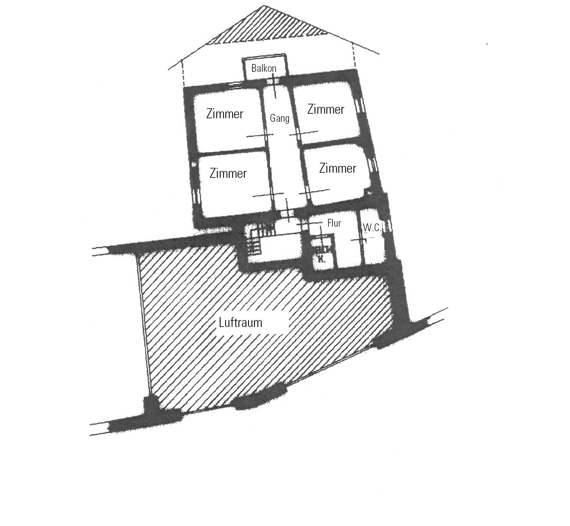
1.Obergeschoss:
- 4 Schlafzimmer
- WC
- Balkon
Die Immobilie ist am gemeindeeigenen Fernwärmenetz angeschlossen und wird mittels Radiatoren beheizt. Ein neuwertiger Stückholzofen ist ebenfalls vorhanden und könnte jederzeit wieder in Betrieb genommen werden. Außerdem befinden sich im Wohnzimmer ein Holzofen und in der Küche ein Holzherd.
Das direkt angebaute Wirtschaftsgebäude hat eine Fläche von ca. 103 m² und eine durchschnittliche Gebäudehöhe von ca. 5 Metern. Es weist somit eine Kubatur von insgesamt ca. 513 m³ auf.
Vor dem Wohnhaus befindet sich eine große, umliegende Grundfläche welche derzeit als Garten genutzt wird.
Die Immobilie befindet sich laut Bauleitplan der Gemeinde Taufers in der roten Gefahrenzone im Landwirtschaftsgebiet. Die Bestandskubatur könnte somit innerhalb des Gemeindegebietes ins landwirtschaftliche Grün verlegt werden und wieder verbaut werden.
Das gesamte Wohnhaus wurde im Laufe der Jahre immer wieder umgebaut und erweitert und befindet sich somit in einem sehr guten Erhaltungszustand.
Es erstreckt sich über 3 Stockwerke und ist wie folgt aufgeteilt:
Kellergeschoss:
- Kellerräume
- Heizraum
Erdgeschoss:
- Küche
- 2 Schlafzimmer
- Wohnzimmer
- Badezimmer
- Tages-WC
- Flur
1.Obergeschoss:
- 4 Schlafzimmer
- WC
- Balkon
Die Immobilie ist am gemeindeeigenen Fernwärmenetz angeschlossen und wird mittels Radiatoren beheizt. Ein neuwertiger Stückholzofen ist ebenfalls vorhanden und könnte jederzeit wieder in Betrieb genommen werden. Außerdem befinden sich im Wohnzimmer ein Holzofen und in der Küche ein Holzherd.
Das direkt angebaute Wirtschaftsgebäude hat eine Fläche von ca. 103 m² und eine durchschnittliche Gebäudehöhe von ca. 5 Metern. Es weist somit eine Kubatur von insgesamt ca. 513 m³ auf.
Vor dem Wohnhaus befindet sich eine große, umliegende Grundfläche welche derzeit als Garten genutzt wird.
Die Immobilie befindet sich laut Bauleitplan der Gemeinde Taufers in der roten Gefahrenzone im Landwirtschaftsgebiet. Die Bestandskubatur könnte somit innerhalb des Gemeindegebietes ins landwirtschaftliche Grün verlegt werden und wieder verbaut werden.
Eckdaten
WohnhausKaufen
Taufers im Münstertal
Italien
Gebraucht
415.000,00 €











