Immobilienangebote>Immobilien mieten

Laas: Tischlereibetrieb im Gewerbegebiet zu vermieten

Vermietet wird eine Tischlerei im Gewerbegebiet von Laas.

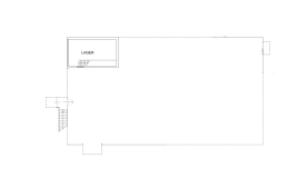
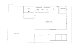
Die Halle ist wie folgt eingeteilt:
- Lagerfläche ca. 60 m²
- Lackiererei ca. 56 m²
- Halle ca. 300 m²

Die Raumhöhe beträgt 3 Meter.

Weiters verfügt die Immobilie über mehrere Autoabstellplätze und Lagerflächen im Freien mit ca. 500 m².

Derzeit wird die Halle als Tischlerei genutzt. Die Maschinen und Einrichtung könnten mit übernommen werden.

Die Beheizung der Halle erfolgt mittels Holz. Zudem ist die Immobilie an das örtliche Fernheizwerk angeschlossen.

Eckdaten

Lager
Mieten
Laas
Italien
324 m²
2.500,00 €

Bilder

Laas: Tischlereibetrieb im Gewerbegebiet zu vermieten
Laas: Tischlereibetrieb im Gewerbegebiet zu vermieten
Laas: Tischlereibetrieb im Gewerbegebiet zu vermieten
Laas: Tischlereibetrieb im Gewerbegebiet zu vermieten
Laas: Tischlereibetrieb im Gewerbegebiet zu vermieten
Laas: Tischlereibetrieb im Gewerbegebiet zu vermieten
Laas: Tischlereibetrieb im Gewerbegebiet zu vermieten
Laas: Tischlereibetrieb im Gewerbegebiet zu vermieten
Laas: Tischlereibetrieb im Gewerbegebiet zu vermieten
Laas: Tischlereibetrieb im Gewerbegebiet zu vermieten

Weitere Informationen

1992
Fernwärme

Karte

Zurück zur Übersicht
Kontakt
autorenew
Südtiroler Marklervereinigung Fimaa
Noch nichts passendes gefunden?
Unser digitaler Immobilienmakler hilft Ihnen bei der Suche!
Jetzt anmelden

Diese Seite verwendet Cookies für funktionale und analytische Zwecke. Lesen Sie unsere Cookie-Richtlinien für weitere Informationen. Durch die Nutzung dieser Website erklären Sie sich damit einverstanden.